






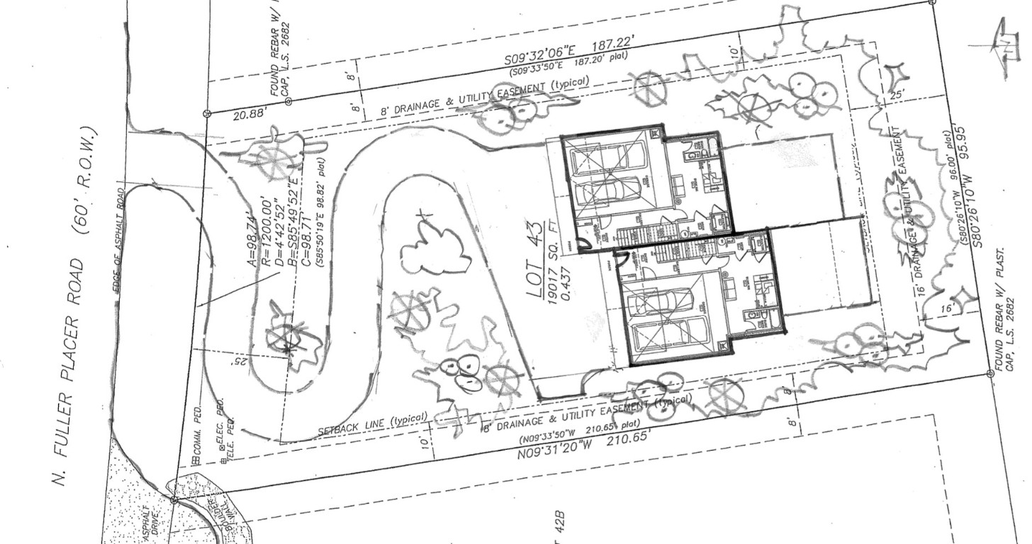
Build your dream home here with sweeping views of the Ten Mile Range OR develop this lot as an income producing DUPLEX. One of the last lots in Breckenridge allowing duplex development. Rare zoning could also allow for a main home with attached mother in law apartment without any deed restriction requirements. No HOA here, affording you freedom in design, with views from every room. Only 3.5mi to the Breckenridge Ski Area and downtown! Own a piece of Breckenridge before the last of the vacant lots are developed. Survey available - lot corners and building envelope are staked.
We are here provide the highest level of personalized and professional service to our clients. We continually seek to grow our systems and expand our team so we may provide this heightened level of service to as many people as we can. Contact us today!
Contact Us